Mehrgenerationenhaus in Wermelskirchen / Oberwinkelhausen mit ländlicher Lage zu verkaufen – 585.000 Euro
- 585K€
Übersicht
- Einfamilienhaus
- 3
- 3
- 263,10 m²
Beschreibung
Beschreibung: Dieses besondere Mehrgenerationenhaus wurde 2010/11 auf einem alten Gebäude unter der Verwendung ökologischer Baustoffe neu aufgebaut. Die Immobilie befindet sich auf einem 695 Quadratmeter großen Grundstück in grünster Ortsrandlage von Wermelskirchen und bietet eine sehr gute Verkehrsanbindung.
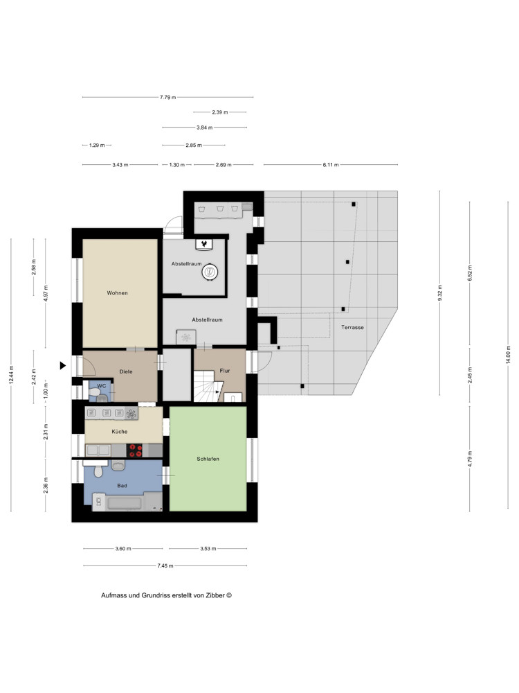
Wohnfläche und Aufteilung: Die Gesamtwohnfläche von 263,10 Quadratmetern teilt sich in eine vermietete Einliegerwohnung im Erdgeschoss und eine großzügige Hauptwohnung. Die Einliegerwohnung verügt über einen eigenen Eingang mit einer vorgelagerten Terrasse und umfasst ein Wohn- und Schlafzimmer, eine Küche, ein Tageslichtbad und ein separates Gäste-WC.
Der Eingang zur Hauptwohnung befindet sich an der Rückfront des Hauses. Über eine innenliegende Treppe gelangt man in die erste Etage. Hier sorgt ein Kanuk-Ofen im Flur während der kalten Jahreszeit für angenehme Wärme. Die erste Etage ist barrierearm und behindertengerecht mit einem Aufzug gestaltet. Auf dieser Ebene befinden sich vier Zimmer, ein Tageslichtbad und ein Gäste-WC.
Im Dachgeschoss dominiert ein großzügiges Wohn- und Esszimmer mit integrierter Einbauküche und Kochinsel das Geschehen. Ein Schlafzimmer mit Badezimmer en Suite und separatem WC runden das Angebot ab.
Weitere Eckdaten:
- Baujahr: 2010/11 (unter Verwendung ökologischer Baustoffe)
- Grundstück: 695 Quadratmeter
- Wohnfläche: 263,10 Quadratmeter
- Einliegerwohnung mit Terrasse und separatem Eingang
- Hauptwohnung: Barrierearm und behindertengerecht mit Aufzug
- Verkehrsgünstige und grüne Ortsrandlage
Vielseitige Nutzungsmöglichkeiten: Diese Immobilie eignet sich hervorragend als Mehrgenerationenhaus, für sehr große Familien oder zur Kombination von Wohnen und Arbeiten.
Die Immobilie wird aufgrund eines geplanten Ortswechsels nach Absprache frei.
Ausstattung
- Hochwertige und ökologische Materialien
- Photovoltaikanlage mit Speicher für eigenen Strom
- Holzhaus im Garten mit Werkstatt und Sauna
- Großer Carport mit Wall-Box
- Zwei Terrassen für entspannte Stunden im Freien
Lage
Exklusive Immobilie in Top-Lage: Wermelskirchen – Oberwinkelhausen
Lagebeschreibung: Die Immobilie befindet sich in einer ruhigen und charmanten Ortschaft in Sackgassenlage im idyllischen Wermelskirchen-Oberwinkelhausen mit etwa 289 Einwohnern. Diese Lage bietet eine harmonische Mischung aus ländlicher Idylle und städtischer Anbindung. Die Umgebung ist geprägt von einer angenehmen Wohnatmosphäre, die durch die geringe Bevölkerungsdichte und ein Durchschnittsalter von 49 Jahren besonders familienfreundlich ist.
Verkehrsanbindung: Für Familien und Berufspendler bietet die Anbindung an den öffentlichen Nahverkehr und das überregionale Straßennetz große Vorteile. Die Autobahnauffahrt zur A1 ist in nur ca. 1,5 Kilometern erreichbar, was eine zügige Verbindung zu umliegenden Städten sichert. Der internationale Flughafen Köln/Bonn ist nur ca. 45 Kilometer entfernt und bequem über die A1 erreichbar.
Infrastruktur: Auch die Nähe zu wichtigen Einrichtungen macht diese Lage besonders attraktiv:
- Krankenhaus Wermelskirchen: Nur ca. 3,6 Kilometer entfernt, bietet umfassende medizinische Versorgung.
- Einkaufsmöglichkeiten: Das Rewe-Center ist etwa 3,8 Kilometer entfernt und ideal für den täglichen Bedarf.
- Bildung: Familien mit Kindern profitieren von der Nähe zur Grundschule Am Haiderbach sowie weiterführenden Schulen im Stadtzentrum. Kinder werden mit dem Schulbus direkt vor der Haustür abgeholt und zurückgebracht.
Natur und Freizeit: Die Ortschaft ist eingebettet in eine malerische Wald- und Wiesenlandschaft. Zahlreiche Wanderwege starten direkt vor der Haustür und führen zu beliebten Zielen wie Schloss Burg und der Sengbachtalsperre (beide ca. 2 Kilometer entfernt). Die Umgebung ist ideal für Wanderer, Radfahrer und Reiter und bietet vielfältige Freizeitmöglichkeiten.
Zusammenfassung: Diese Immobilie bietet eine ausgewogene Kombination aus Ruhe, hervorragender Anbindung und Nähe zu wichtigen Einrichtungen. Ob Familien mit Kindern oder Berufstätige – die Lage ist für verschiedene Lebensmodelle bestens geeignet.
Mit dieser hervorragenden Lage in Wermelskirchen-Oberwinkelhausen sichern Sie sich ein Stück Lebensqualität, das Privatleben und Beruf ideal miteinander verbindet. Nutzen Sie die Gelegenheit und entdecken Sie die zahlreichen Vorteile dieser charmanten Ortschaft!
+++ Bitte haben Sie Verständnis, dass wir nur Anfragen mit VOLLSTÄNDIGEN persönlichen Angaben (komplette Anschrift, Rufnummer und E-Mail) beantworten werden! +++
Adresse
Google Maps öffnen-
Stadt : Wermelskirchen
-
Bezirk: Oberbergischer Kreis
-
Postleitzahl: 42929
-
Land: Deutschland
Details
Aktualisiert am Juni 30, 2025 bei 11:25 a.m.-
Preis 585K€
-
Wohnfläche 263,10 m²
-
Grundstücksgröße 695 m²
-
Schlafzimmer 3
-
Zimmer 8
-
Badezimmer 3
-
Baujahr 1910
-
Immobilientyp Einfamilienhaus
-
Status Kaufen
-
Etagen 2
Weitere Details
-
Provision für Käufer 3,57 % inkl. der gesetzl. MwSt.
-
Energieausweis gültig bis 2035-01-14
-
Energieausweis Jahrgang ab dem 1.5.2014
-
Energieausweis Gebäudeart Wohngebäude
-
Heizung Zentralheizung
-
Befeuerung Gas
-
Carport 3
-
Stellplätze 3
Energieklasse
-
Energieklasse: D
-
Fügen Sie den globalen Energieertrag hinzu: 124 kWh / (m²*a)
- A+
- A
- B
- C
- 124 kWh / (m²*a) | Energieklasse DD
- E
- F
- G
- H
Eigenschaften
Grundrisse
- 2
- 1




























